ArchStudio Ericeira

Casa Fonte Boa

Fonte Boa dos Nabos, Portugal 2022-2020
Área: 230 m2
Cliente: Privado
Fotografia: Robin Pearson
Estado: Completo

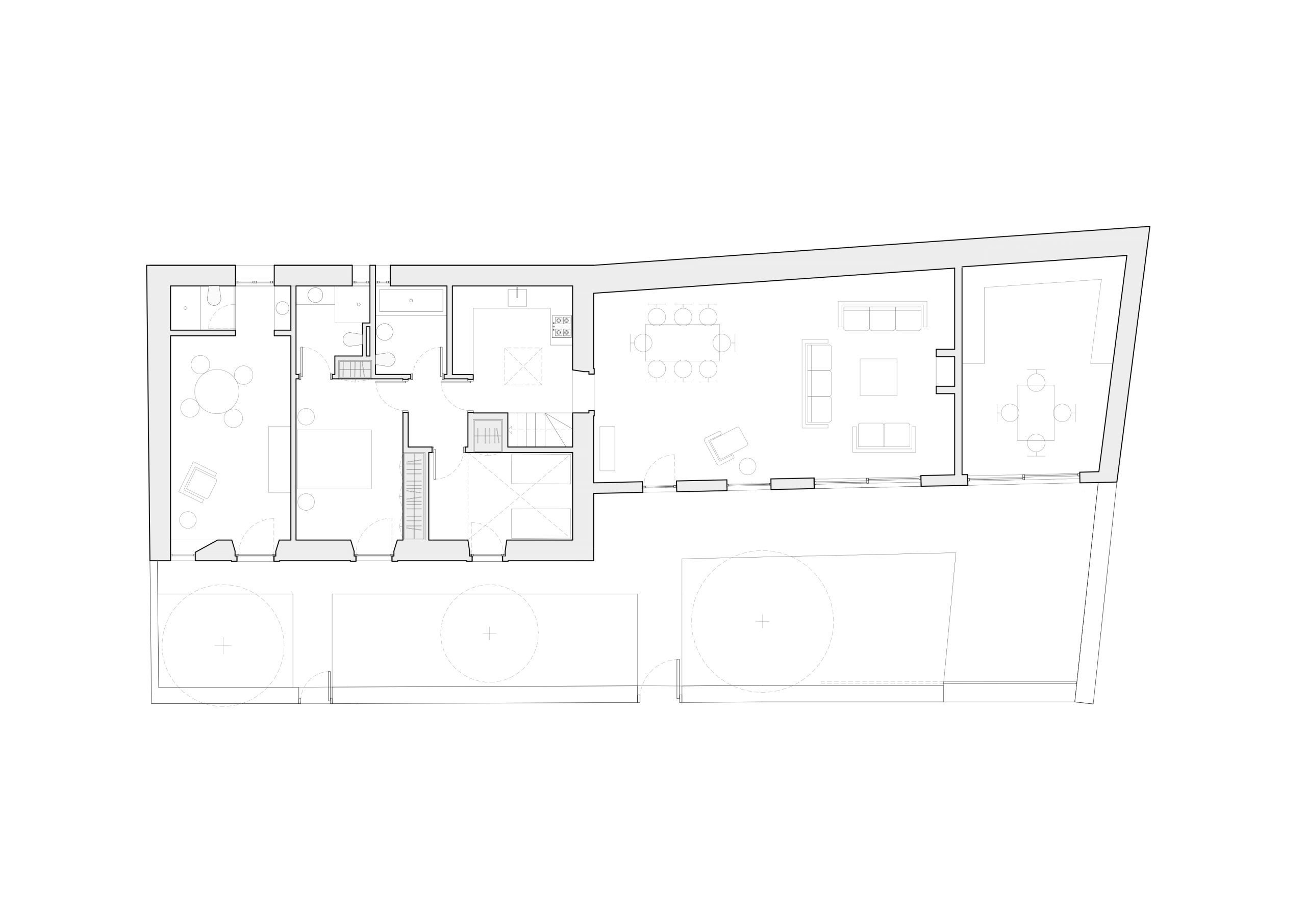
A casa de Fonte Boa, originalmente com mais de 100 anos, é uma típica casa rural num pequeno terreno de uma aldeia portuguesa, perto de Ericeira. Com a intenção de preservar a sua simplicidade e pureza, propusemo-nos a integrar os seus elementos originais característicos com uma ampliação em linhas modernas.

Scroll to Top