ArchStudio Ericeira

Ampliação Casa Figueira

Ericeira, Portugal 2024
Área: 350 m2
Cliente: Privado
Estado: Projecto

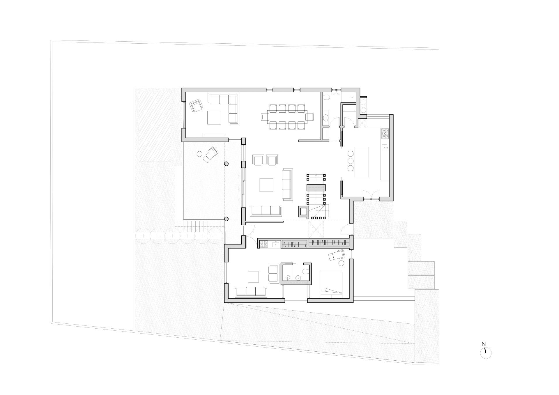
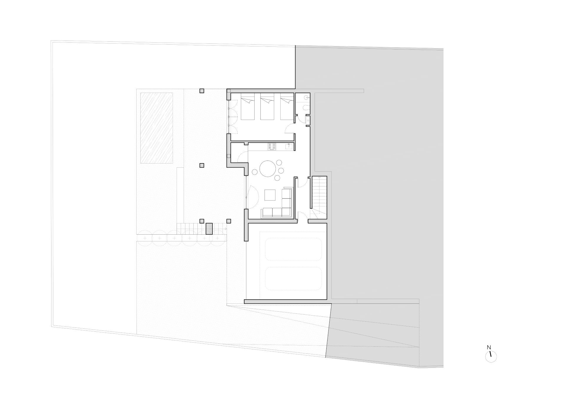
A Casa Figueira beneficia de uma generosa vista para o mar da Ericeira.
O projecto de grande ampliação, requisitos para uma família numerosa, procura renovar e modernizar a imagem da casa privilegiando espaços amplos e generosos vãos.
Com a implementação de uma nova piscina, o projecto interpreta um diálogo entre a arquitectura tradicional e a linguagem moderna.

Scroll to Top